
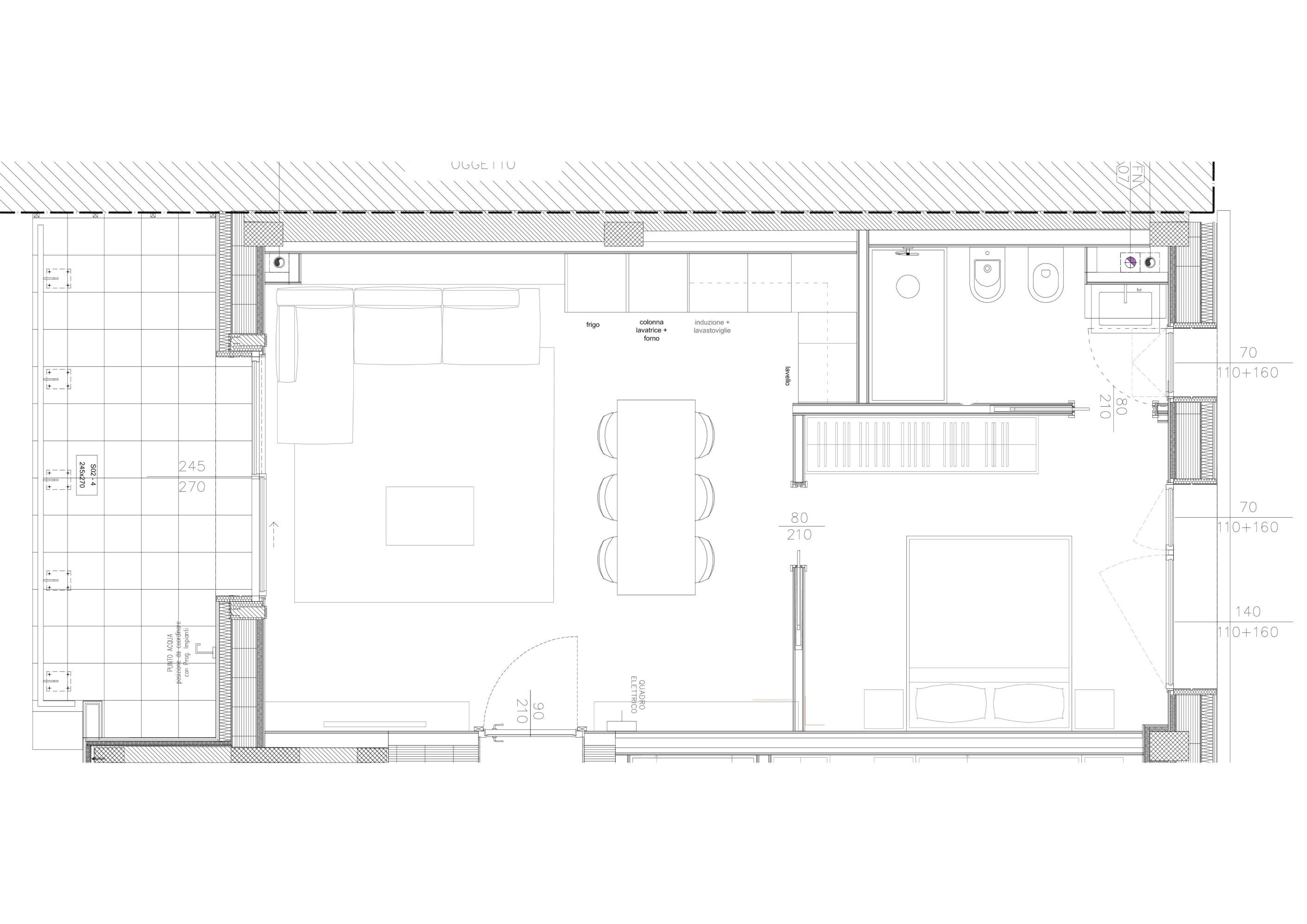
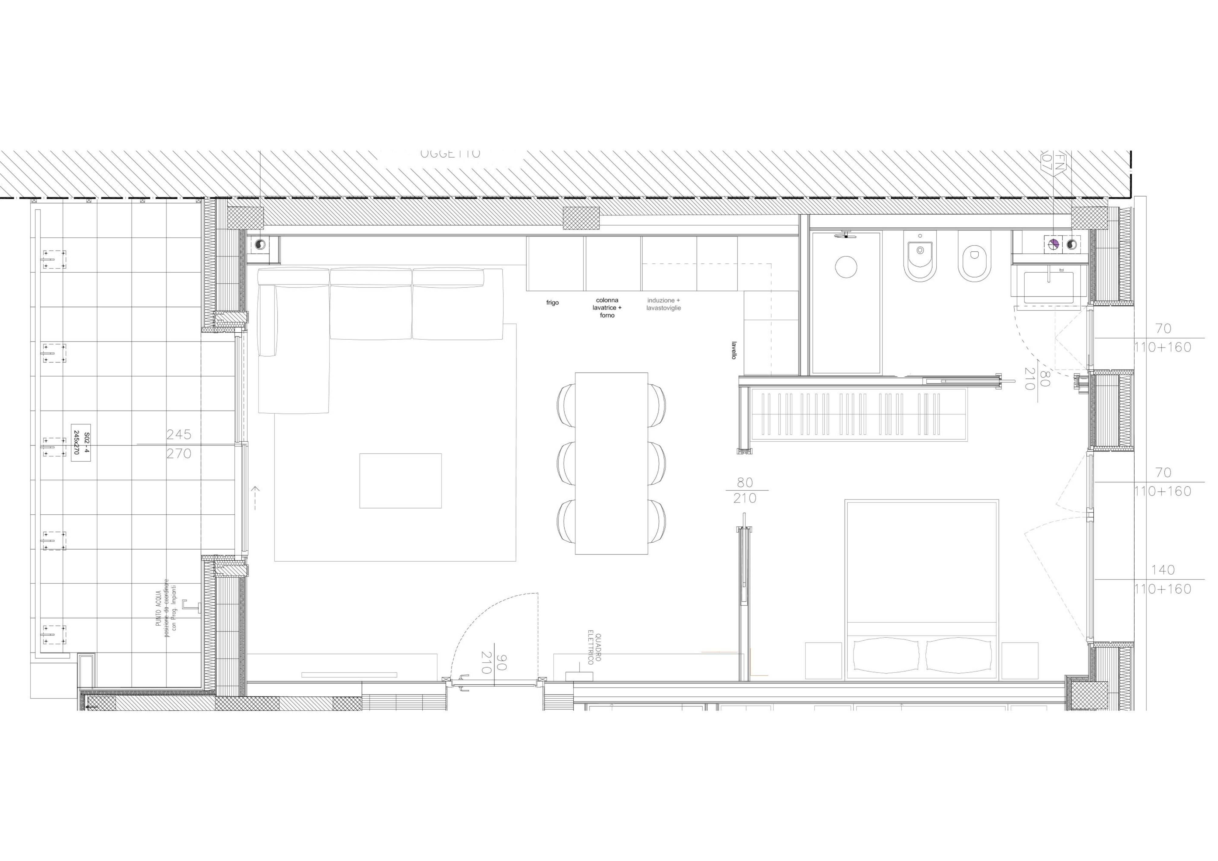
Bilocale via Cola Montano, 32
€ 705.000
Appartamento di due locali con doppi servizi al primo piano cosi composto: ingresso, soggiorno con cucina a vista, disimpegno notte, due camere matrimoniali, due bagni di cui uno en suite e finestrato, terrazzo privato.
Tutte le unità saranno dotate di impianti domotici e godranno del massimo comfort acustico ed ambientale, grazie all'utilizzo delle migliori tecnologie ed all'adozione di tecniche di costruzione all'avanguardia.
Le unità vengono vendute comprensive di cucina su misura "Molteni" e dispongono di ampie lavanderie privato al piano interrato dello stabile.
PLANIMETRIA

- App. 0.1: bilocale di 55 mq al piano rialzato -> VENDUTO
- App. 0.2: trilocale di 110 mq al piano rialzato con terrazzo privato -> €1.005.000
- App. 1.1: bilocale di 69 mq al piano primo con terrazzo privato -> €705.000
- App. 1.2: trilocale di 87 mq al piano primo -> VENDUTO
- App. 1.3: trilocale di 100 mq al piano primo con balcone -> VENDUTO
- App. 2.1: trilocale di 100 mq al piano secondo con balcone -> VENDUTO
- App. 2.2. : bilocale di 50 mq al piano secondo -> VENDUTO
- Attico: Attico di 290 mq ai piani terzo e secondo con terrazzo perimetrale panoramico, balcone e doppio ingresso -> VENDUTO
Tutte le unità dispongono di ampie cantine finestrate pertinenziali attrezzate a lavanderia al piano interrato dello stabile. Sono inoltre disponibili n. 6 posti auto privati al prezzo di € 55.000, 00 l'uno.
Gli immobili sono previsti in consegna per la fine del terzo trimestre 2026.



